POLYFUNKČNÝ OBJEKT NITRIANSKE RUDNO

Späť
STAVBA
POLYFUNKČNÝ OBJEKT
DRUH STAVBY
ZMENA STAVBY
ZASTAVANÁ PLOCHA
300 m²
VÝŠKA STAVBY
15 m
TYP STRECHY
SEDLOVÁ

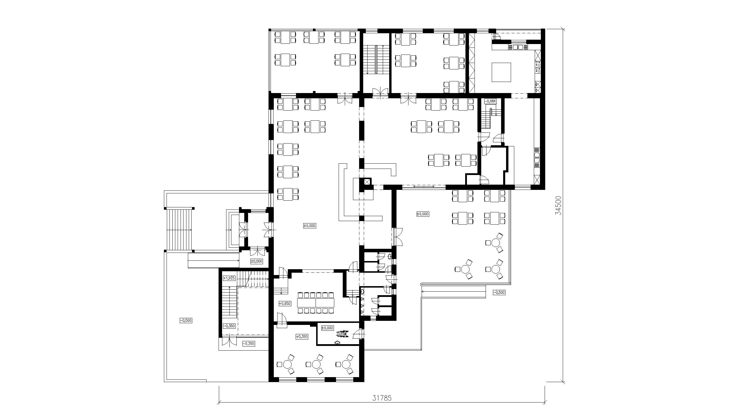
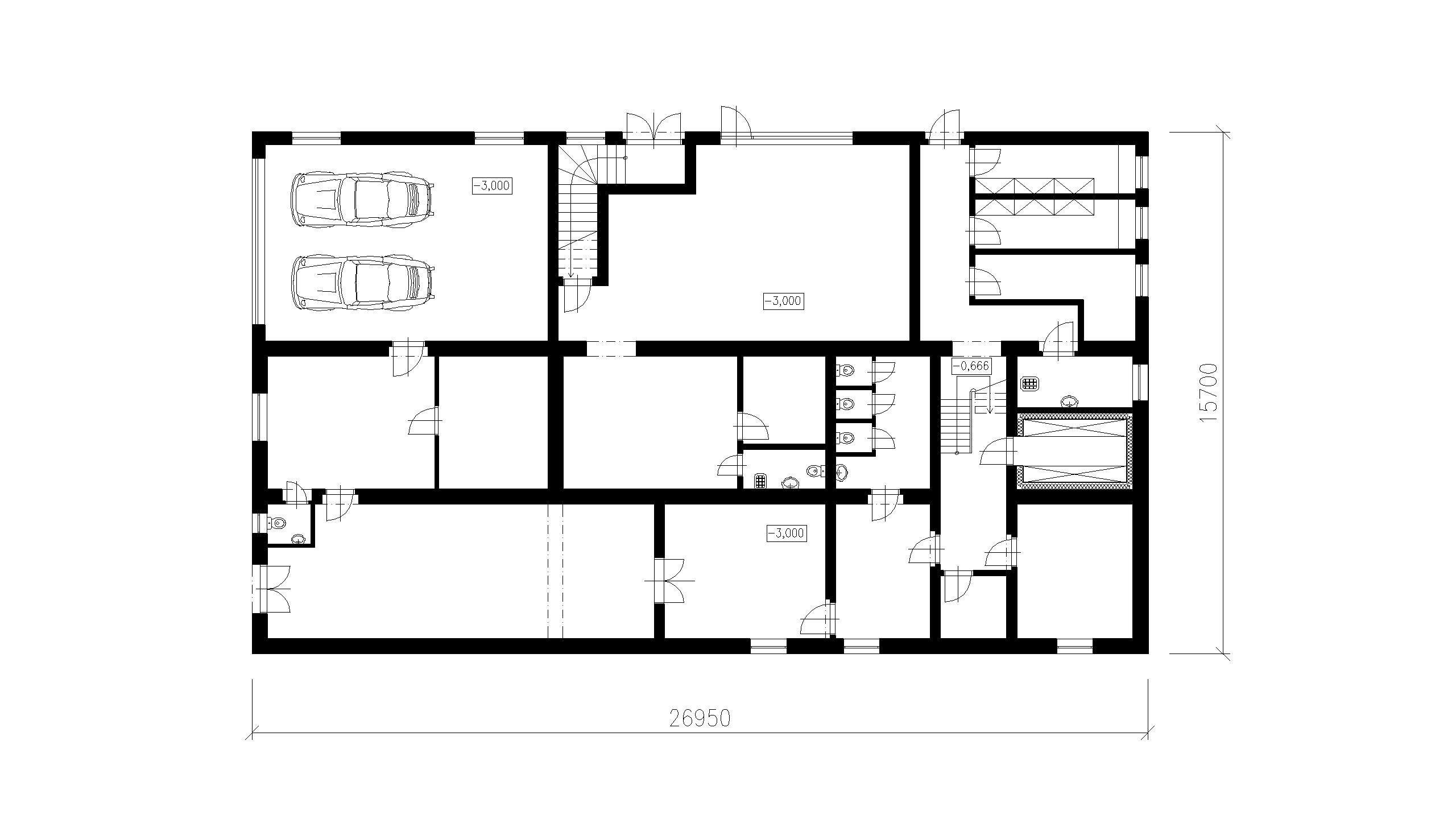
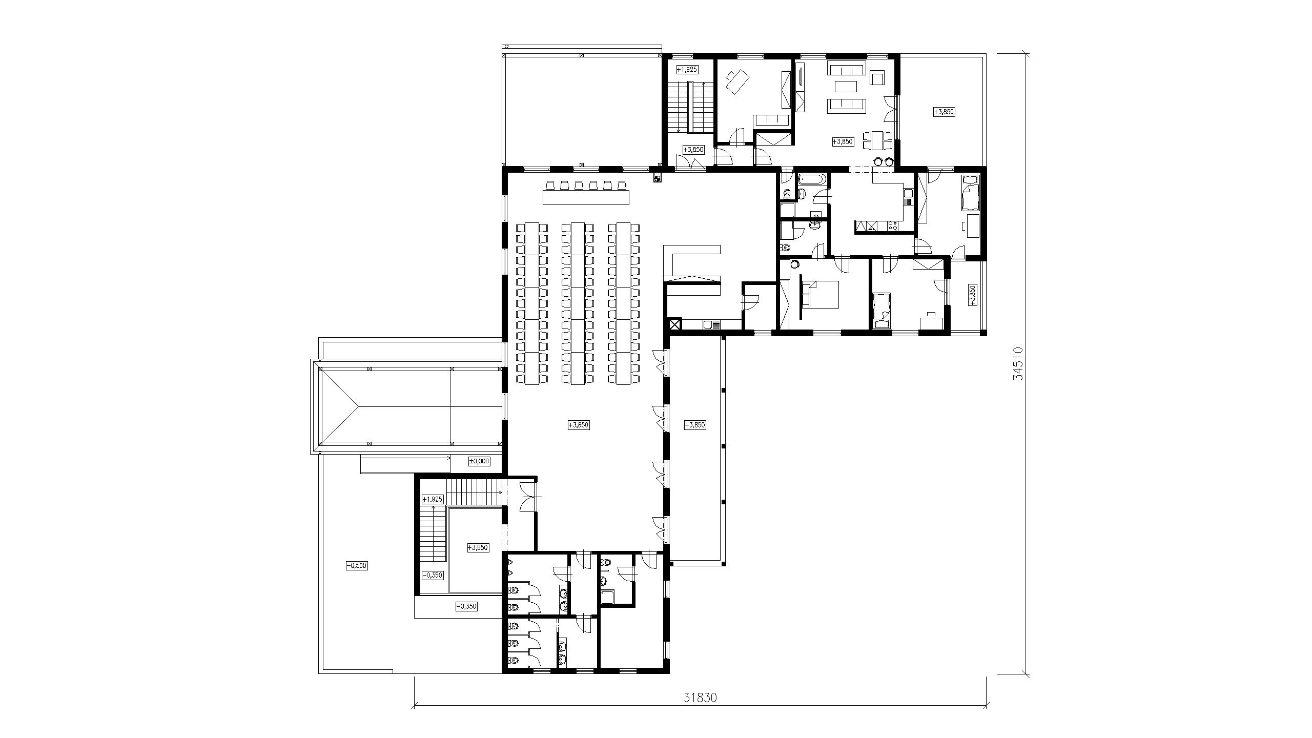
ROZSIAHLE ZADANIE SPOČÍVALO V ZMENE STAVBY ZÁVODNEJ KUCHYŇE NA POLYFUNKČNÝ OBJEKT. SÚČASŤOU NÁVRHU BOLA PRÍSTAVBA, NADSTAVBA A PRESTAVBA PÔVODNÉHO STAVU. PRIMÁRNYM CIEĽOM BOLO VYTVORIŤ OBJEKT S VIACÚČELOVÝM VYUŽITÍM V OBLASTI SLUŽIEB, OBCHODU A SÚKROMNÉHO UBYTOVANIA.

HLAVNOU MYŠLIENKOU NÁVRHU BOLA PREMENA ZÁVODNEJ KUCHYNE NA KOMPLEXNÉ ZARIADENIE ZAMERANÉ NA PRIESTORY URČENÉ NA POSKYTOVANIE SLUŽIEB V OBLASTI STRAVOVANIA A SPOLOČENSKÝCH AKCII AKÝMI SÚ SVADBY, PLESY, KONFERENCIE ČI INÉ UDALOSTI. NA POSCHODÍ BOLI NAVRHNUTÉ VEĽKÉ OTVORENÉ PRIESTORY PRE SPOLOČENSKÉ UDALOSTI A SÚKROMNÝ BYT INVESTORA. NA PRÍZEMÍ BOLA V PÔVODNÝCH PRIESTOROCH NAVRHNUTÁ PIZZERIA S VEĽKOU TERASOU V ZADNEJ ČASTI OBEJKTU. V SUTERÉNE BOLI OKREM ZÁSOBOVANIA PREVÁDZKY NAVRHNUTÉ AJ PRIESTORY NA PRENÁJOM S VYUŽITÍM V OBLASTI OBCHODU.