RD SEBEDRAŽIE

Späť
DRUH STAVBY
REKONŠTRUKCIA
ZASTAVANÁ PLOCHA
206,21 m²
ÚŽITKOVÁ PLOCHA
148,40 m²
VYKUROVANIE
PLYNOVÝ KOTOL + KRB
TYP STRECHY
VALBOVÁ
OBYTNÉ MIESTNOSTI
4

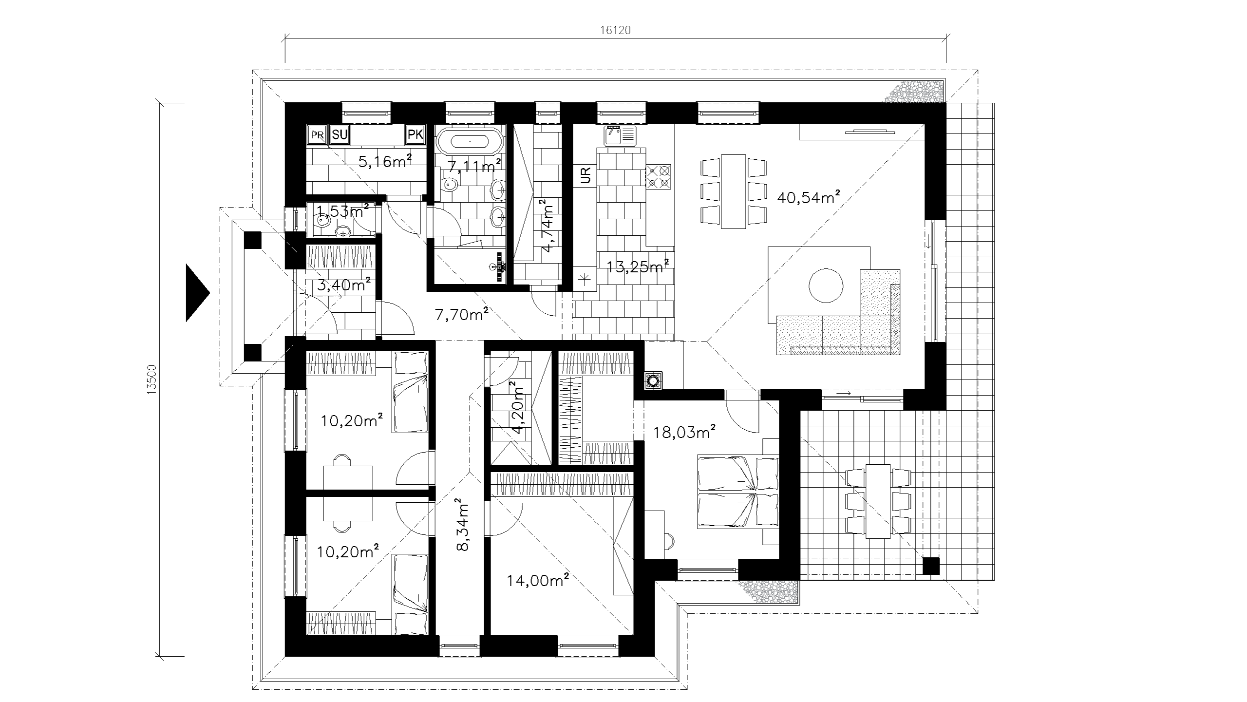
REKONŠTRUKCIA DOMU PRINÁŠA NOVÉ PRIESTOROVÉ USPORIADANIE, KTORÉ PRIRODZENE PREPÁJA INTERIÉR S EXTERIÉROM. OBYTNÝ PRIESTOR SA OTVÁRA SMEROM NA KRYTÚ TERASU A ZÁHRADU, ČÍM VYTVÁRA PRÍJEMNÉ MIESTO PRE KAŽDODENNÉ RODINNÉ CHVÍLE. ARCHITEKTÚRA DOMU PÔSOBÍ POKOJNE A HARMONICKY, S DÔRAZOM NA SVETLO, JEDNODUCHOSŤ A KOMFORT BÝVANIA.

DISPOZIČNÉ RIEŠENIE JE FUNKČNE ROZDELENÉ NA DENNÚ A NOČNÚ ČASŤ, PRIČOM CENTRÁLNU ČASŤ PÔDORYSU TVORÍ OBYTNÝ PRIESTOR POZOSTÁVAJÚCI Z OBÝVACEJ IZBY, KUCHYNE A JEDÁLNE S PRIAMYM NAPOJENÍM NA EXTERIÉROVÚ TERASU. NOČNÁ ČASŤ DOMU POZOSTÁVA Z TROCH OBYTNÝCH MIESTNOSTÍ DOPLNENÝCH O HYGIENICKÉ ZÁZEMIE, TECHNICKÚ MIESTNOSŤ A KOMUNIKAČNÉ PRIESTORY ZABEZPEČUJÚCE PREVÁDZKOVÉ PREPOJENIE JEDNOTLIVÝCH FUNKČNÝCH CELKOV. REKONŠTRUKCIA ZAHŔŇA AJ ÚPRAVU STAVEBNÝCH KONŠTRUKCIÍ A MATERIÁLOVÉHO RIEŠENIA OBJEKTU S CIEĽOM ZVÝŠIŤ KVALITU VNÚTORNÉHO PROSTREDIA A PREVÁDZKOVÚ EFEKTÍVNOSŤ STAVBY. OBJEKT JE ZASTREŠENÝ VALBOVOU STRECHOU TVORENOU Z VÄZNÍKOVÉHO KROVU, S VIACVRSTVOVÝM STREŠNÝM PLÁŠŤOM ZABEZPEČUJÚCIM TEPELNOIZOLAČNÉ VLASTNOSTI KONŠTRUKCIE A SPOĽAHLIVÉ ODVÁDZANIE ZRÁŽKOVÝCH VÔD.