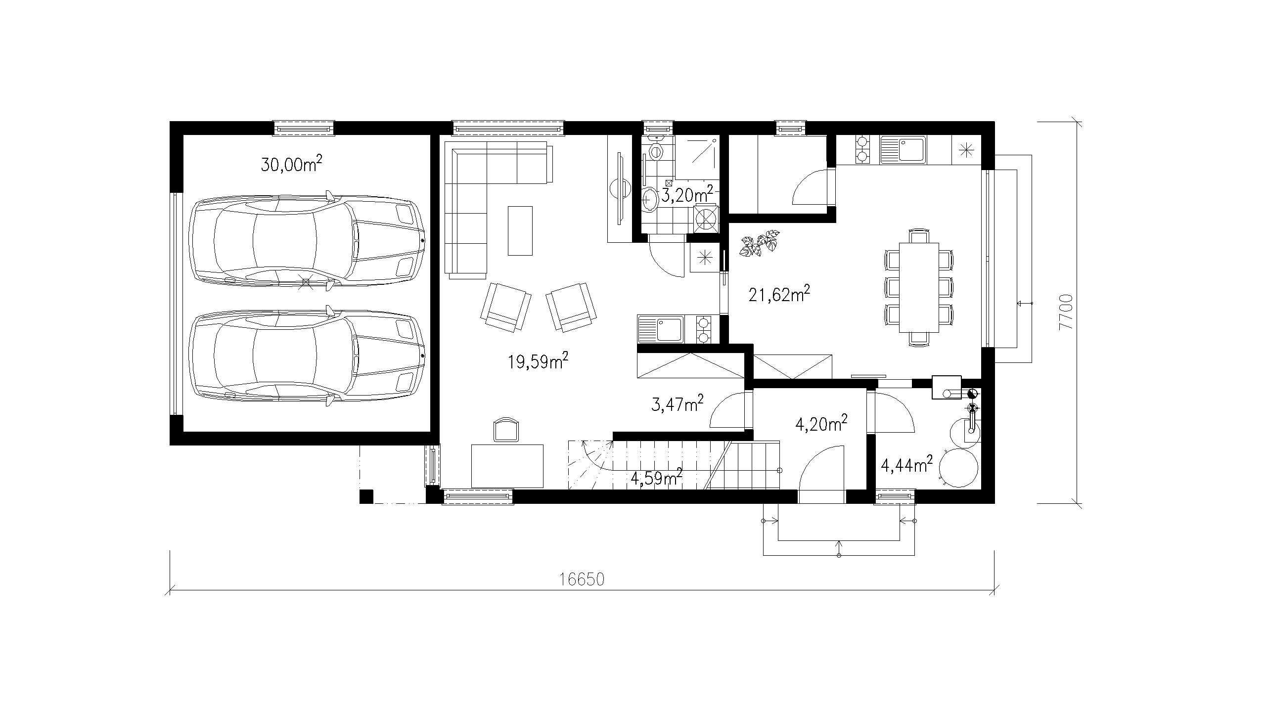
PROJEKT DREVOSTAVBY BOL RIEŠENÝ AKO DVOJPODLAŽNÁ STAVBA NA POZDĹŽNOM POZEMKU. SÚČASŤOU STAVBY JE VSTAVANÁ GARÁŽ PRE DVE AUTÁ. KOMBINÁCIA VIACERÝCH MODERNÝCH MATERIÁLOV NA FASÁDE VYTVÁRA PRIRODZENÚ ELEGANCIU VIZUÁLNEHO RIEŠENIA.
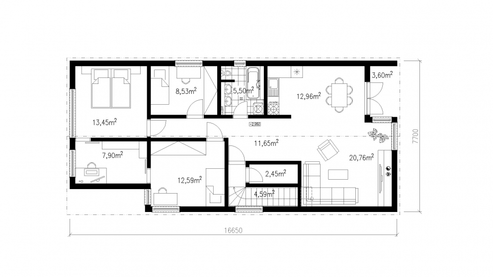
NA PRÍZEMÍ SA NACHÁDZA MALÉ ZÁDVERIE Z KTORÉHO SA VSTUPUJE PRIAMO DO HLAVNEJ OBÝVACEJ MIESTNOSTI, ALEBO TECHNICKEJ MIESTNOSTI. OBÝVACIA MIESTNOSŤ MÁ SAMOSTATNÚ MINI KUCHYNKU A HYGIENICKE ZÁZEMIE. CEZ OTVOR V STENE JE VSTUP DO KUCHYNE S JEDÁLŇOU, KTORÁ MÁ SAMOSTANÚ KOMORU. POSCHODIE JE RIEŠENÉ AKO NADZEMNÉ PODLAŽIE S DVOMA DETSKÝMI IZBAMI A SPÁLŇOU. NA POSCHODÍ JE UMIESTNENÁ KÚPEĽŇA A SPOLOČENSKÁ MIESTNOSŤ S KUCHYNKOU.