NOVOSTAVBA RODINNÉHO DOMU ZAPADLA DO OKOLITÉHO ROVINATÉHO PROSTREDIA. FUNKČNÉ VYUŽITIE PRIESTORU A ROZLOŽENIE MIESTNOSTÍ AJ NA MENŠEJ ZASTAVANEJ PLOCHE VYTVORILI PRIESTOR PRE RODINNÉ BÝVANIE. STAVBU DOPĹŇA NAVRHOVANÁ VONKAJŠIA TERASA, KTORÁ ZABEZPEČUJE PREPOJENIE MEDZI BÝVANÍM A PRIAMYM KONTAKTOM S PRÍRODOU.
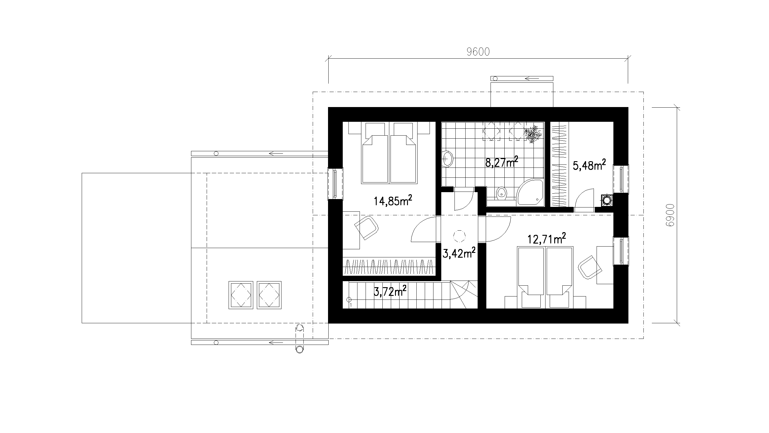
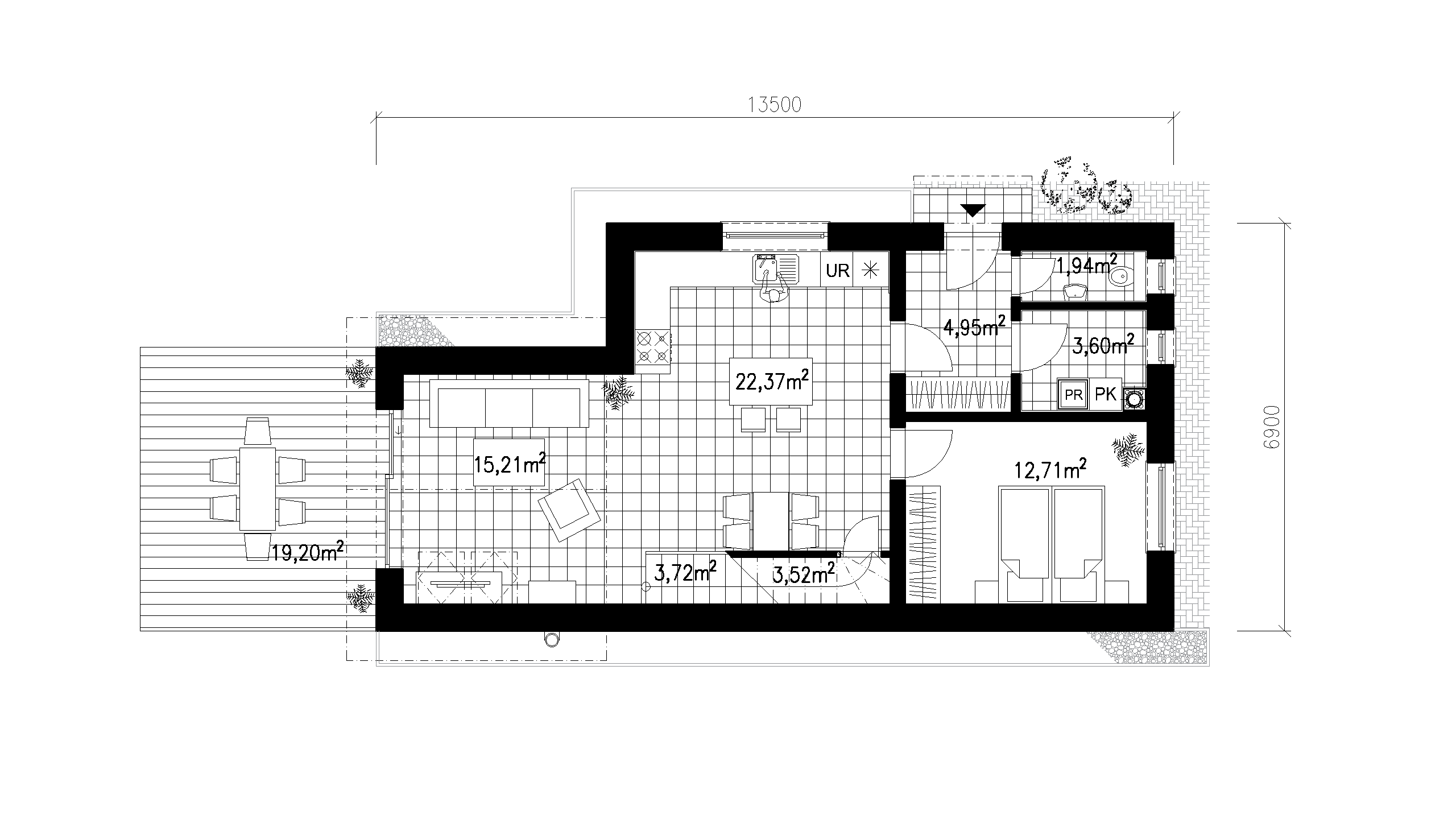
NA PRÍZEMÍ SA NACHÁDZA SPOLOČENSKÁ ZÓNA. HLAVNÝ VCHOD JE S PRIAMÝM VSTUPOM DO SAMOSTATNÉHO WC A TECHNICKEJ MIESTNOSTI. OBÝVACIA IZBA SPOJENÁ S JEDÁLŇOU A KUCHYŇOU OPTICKY VYTVÁRA VÄČŠÍ A MODERNÝ PRIESTOR. POD SCHODISKOM JE RIEŠENÁ ODKLADACIA MIESTNOSŤ. PODKROVIE, NAVRHNUTÉ PRE ODPOČINOK, TVORÍ SPÁLŇA SO ŠATNÍKOM, DETSKÁ IZBA A KÚPELŇA.