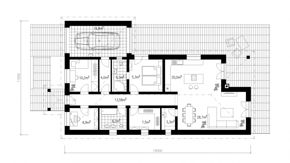
INDIVIDUÁLNY RODINNÝ DOM BOL NAVRHNUTÝ AKO JEDNOPODLAŽNÁ STAVBA NA ÚZKOM POZDĹŽNOM POZEMKU. PREJAZDNÁ GARÁŽ UMOŽŇUJE PRÍSTUP K ZADNÉMU DVORU A VEĽKEJ EXTERIÉROVEJ TERASE. ELEGANCIA A KOMPAKTNOSŤ NÁVRHU BOLA DOSIAHNUTÁ VĎAKA MODERNÝM MATERIÁLOM A NÁVRHOM OKOLIA
RODINNÝ DOM TYPU BUNGALOW BOL NAPROJEKTOVANÝ V POZDĹŽNOM TVARE ČO ZNAČNE OVPLYVNIL POZEMOK NA KTOROM BOLA STAVBA OSADENÁ. V ÚVODNEJ ČASTI DOMU BOLA UMIESTNENÁ PRIECHODNÁ GARÁŽ A OBYTNÉ MIESTNOSTI. V STREDNEJ ČASTI DISPOZÍCIE BOLO NAVRHNUTÉ TECHNICKÉ A HYGIENICKÉ ZÁZEMIE RODINNÉHO DOMU. V ZADNEJ ČASTI SA NACHÁDZA VEĽKA OBÝVACIA IZBA SPOJENÁ S KUCHYŇOU, KTORÁ JE PRIAMO NAPOJENÉ NA VEĽKÚ EXTERIÉROVÚ TERASU.