KOTOLŇA ELEKTRÁREŇ NOVÁKY

Späť
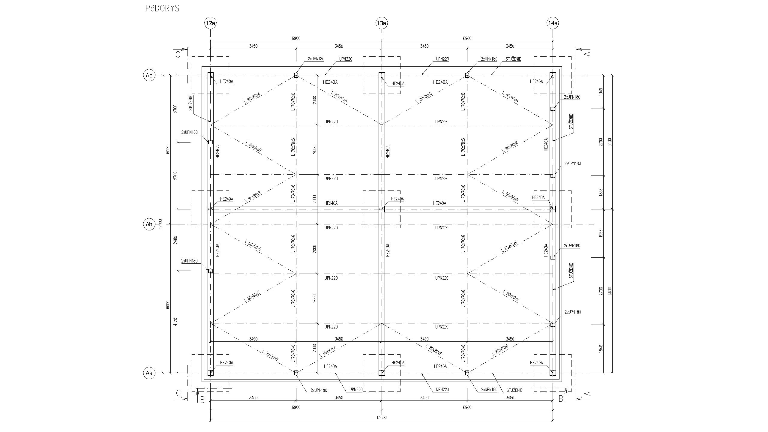
STAVBA
OCEĽOVÁ KONŠTRUKCIA KOTOLNE
VÝŠKA STAVBY
10 m
ZASTAVANÁ PLOCHA
168 m²
SPOTREBA OCELE
28 TON

PREDMETOM NÁVRHU BOLA OCEĽOVÁ NOSNÁ KONŠTRUKCIA NOVONAVRHOVANEJ KOTOLNE V ELEKTRÁRNI NOVÁKY. SÚČASŤOU NÁVRHU BOLI ZÁKLADOVÉ KONŠTRUKCIE POD VEĽKOROZMERNÉ KOTLE S NADMERNOU HMOTNOSŤOU

NOSNÝ RÁMOVÝ SYSTÉM BOL TVORENÝ OCEĽOVÝMI PROFILMI HEA. VÝSTUŽNÝ SYSTÉM BOL NAVRHNUTÝ Z UZAVRETÝCH PROFILOV. STREŠNÉ VÄZNICE A STENOVÉ PAŽNÍKY BOLI NAVRHNUTÉ Z PROFILOV UPE. OPLÁŠTENIE OBJEKTU BOLO NAVRHNUTÉ Z FASÁDNEHO SYSTÉMU TRIMO. ZÁKLADOVÉ KONŠTRUKCIE BOLI UKONČENÉ SPOLOČNOU ZÁKLADOVOU DOSKOU..